Versatile 17,000 SQFT Advanced Production & Event Space - Full Facility

Versatile 17,000 SQFT Advanced Production & Event Space - Full Facility

person Max crew size 10 house Multi-Room, Natural Light, Indoor
What makes our studio unique?

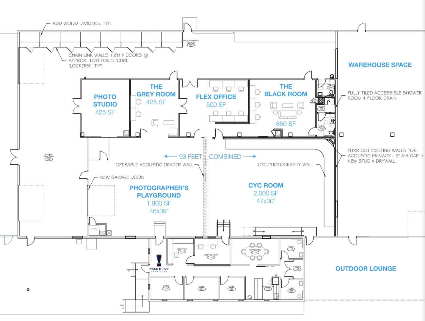
17,000 SQFT OF STATE -OF-THE-ART PRODUCTION & EVENT SPACE

Whether it’s industry-leading production studios, spacious event space, flexible offices or rental equipment to suit your needs, this studio is your one-stop shop This incredible versatile studio features an all LED Cyc Studio, spacious photographer’s playground, modern green rooms and functional warehouse space.

EXPLORE OUR OTHER STUDIOS

500 SQFT Studio - Gorgeous Natural Light!

2000 SQFT Cyclorama Studio

4,000 SF Cyc Studio turned Event Hall!!

Creative Playground - 1,900 SQFT Studio w/ Seamless Wall + Green Room Access!

Outdoor Venue 35 + Acres of Green Space

Events Spaces:

1400 SQFT Roof Deck Lounge & Events Space

The Gallery / Artistic Venue 1,900 SQFT Events Space!

Versatile & Fun Indoor & Outdoor Event Space

Inquire for Pricing

About our studio

AMENITIES & DETAILS

Studio One/Cyc Studio 

Our cyclorama studio features a 30×40 foot curved wall that spans over 13 feet tall. The wall and floor are lit with 100 percent LED fixtures.

  • 2,000 square feet
  • 30x40x13 feet
  • LED pre-lit cyc wall, color adjustable
  • (2) 200amp company switch
  • Large overhead truss
  • Luxurious green room with 3 makeup stations, private bathroom and shower
  • Grip, Lighting and Expendables Available

Studio Two - Photographer’s Playground

1,900 SQFT of floor space equipped with a seamless wall and access to green room facilities.

  • 1,900 square feet
  • Easy load-in for vehicles and gear trucks
  • Talent green room
  • Grip and Seamless Available

Natural LIght Studio

This studio is perfect for a photographer who needs beautiful light quickly, and it is also easy on the budget!

  • 500 square feet
  • 11-foot glass garage door
  • Faces northwest
  • White concrete walls

Event Hall

Spacious and versatile svents space offers 4,000 sq ft of fully customizable space. 

  • Customizable LED lighting
  • Sound system
  • Parking for 100 cars
  • Cleaning service
  • Capacity for 400 standing | 250 theater | 200 banquet

The Grove

Gorgeous outdoor site with lofty pine trees and a raised stage, boasts the ideal setting for an intimate concert, reception, or networking event under bistro lights in the fresh air. In all, the site encompasses more than 35 acres of green space. You can also host your gathering on the covered outdoor patio.

  • Chairs for up to 100
  • Elevated staging
  • LED lighting
  • Sound system
  • Parking for 100 cars
  • Cleaning service
  • Capacity for 150
Read more

Access

Parking

Free Parking

Studio details

Type

  • checkbox One Room
  • checkbox Multi-Room
  • checkbox Natural Light
  • checkbox Indoor
  • checkbox Outdoor
  • checkbox Still Life
  • checkbox Sound Stage
  • checkbox Soundproof
  • checkbox Cyclorama

Studio details

  • checkbox Seamless
  • checkbox White Floors
  • checkbox White Walls
  • checkbox Exposed Brick
  • checkbox Shooting Kitchen
  • checkbox Shooting Bathroom
  • checkbox Rooftop
  • checkbox Overhead Shooting
  • checkbox Wood Floors
  • checkbox Outdoor access
  • checkbox Garden access
  • checkbox Black out shades
  • checkbox Vehicle access
  • checkbox Cityscape/Skyline views

Studio features

  • checkbox Basic Studio Equipment
  • checkbox On-Site Rental Equipment
  • checkbox On-site Support Staff
  • checkbox WiFi
  • checkbox Digital Tech On-Site
  • checkbox Air Conditioning
  • checkbox Computers available
  • checkbox Sound System
  • checkbox Pet Friendly

Rooms

  • checkbox Makeup/Hair Room
  • checkbox Lounge
  • checkbox VIP Room
  • checkbox Mezzanine
  • checkbox Kitchen
  • checkbox Restroom
  • checkbox Shower

Kitchen description:

Fully Equipped Kitchen

Misc

Max crew size
10
Terms and Conditions

Still can’t find what you’re looking for?

-